
Attraktive und vielseitig nutzbare Büro-Flächen im TechnologieZentrum Nord Dresden – ideale Lage für Wachstum in der Halbleiterindustrie
Fläche
1,233.00 m²
Typ
Büro
Standort
TZ Dresden Nord
Attraktive und vielseitig nutzbare Büro-Flächen im TechnologieZentrum Nord Dresden – ideale Lage für Wachstum in der Halbleiterindustrie
Beschreibung
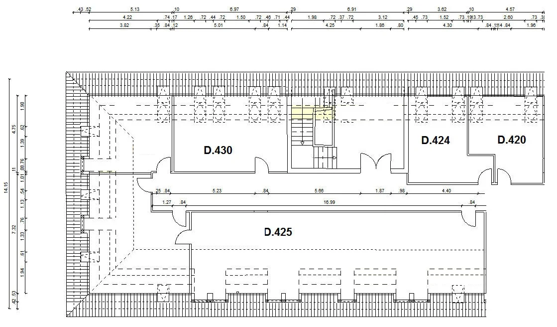
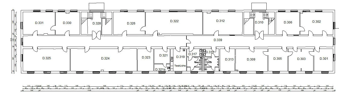
Im TechnologieZentrum Nord Dresden stehen attraktive Flächen zur Verfügung, die flexibel als Büro, Werkstatt, Labor oder Lager genutzt werden können. Die modernen Räume bieten eine angenehme Arbeitsatmosphäre und sind klimatisiert, um optimale Bedingungen für Ihr Unternehmen zu gewährleisten. Dank der vielseitigen Nutzungsmöglichkeiten eignen sich die Flächen ideal für Start-ups, Technologieunternehmen und innovative Projekte. Profitieren Sie von einer hervorragenden Infrastruktur und einer dynamischen Umgebung im Herzen des Dresdner Technologie-Standorts.
Grunddaten
Gesamtfläche
1,233.00 m²
Standort
TZ Dresden Nord
Flächenart
Büro
Verfügbar ab
June 2025
Einzelvermietung
Feste Mieteinheit
Gebäude am Standort
TechnologieZentrumNord Haus E
Flächendetails
Bürofläche
1,233.00 m²
Ausstattung
Lüftung
Prozessabluft
Medienanschluss Stickstoff
Medienanschluss Edelgase
Druckluft
Zusätzliche Beschreibung zur Ausstattung:
Eigener Bereich, mit Dusche und WC
Bilder

Grundriss


