
kleine Laboreinheit im Nanocenter
kleine Laboreinheit im Nanocenter
Beschreibung
Der Dresdner Norden ist lukrativer Ansiedlungsort der Halbleiterbranche geworden. Das Technologie- und Gründerzentrum in unmittelbarer Nähe des Flughafens Dresden-Klotzsche bietet jungen Unternehmen Labor- und Werkstattflächen zur individuellen Ausgestaltung in innovativem Umfeld.
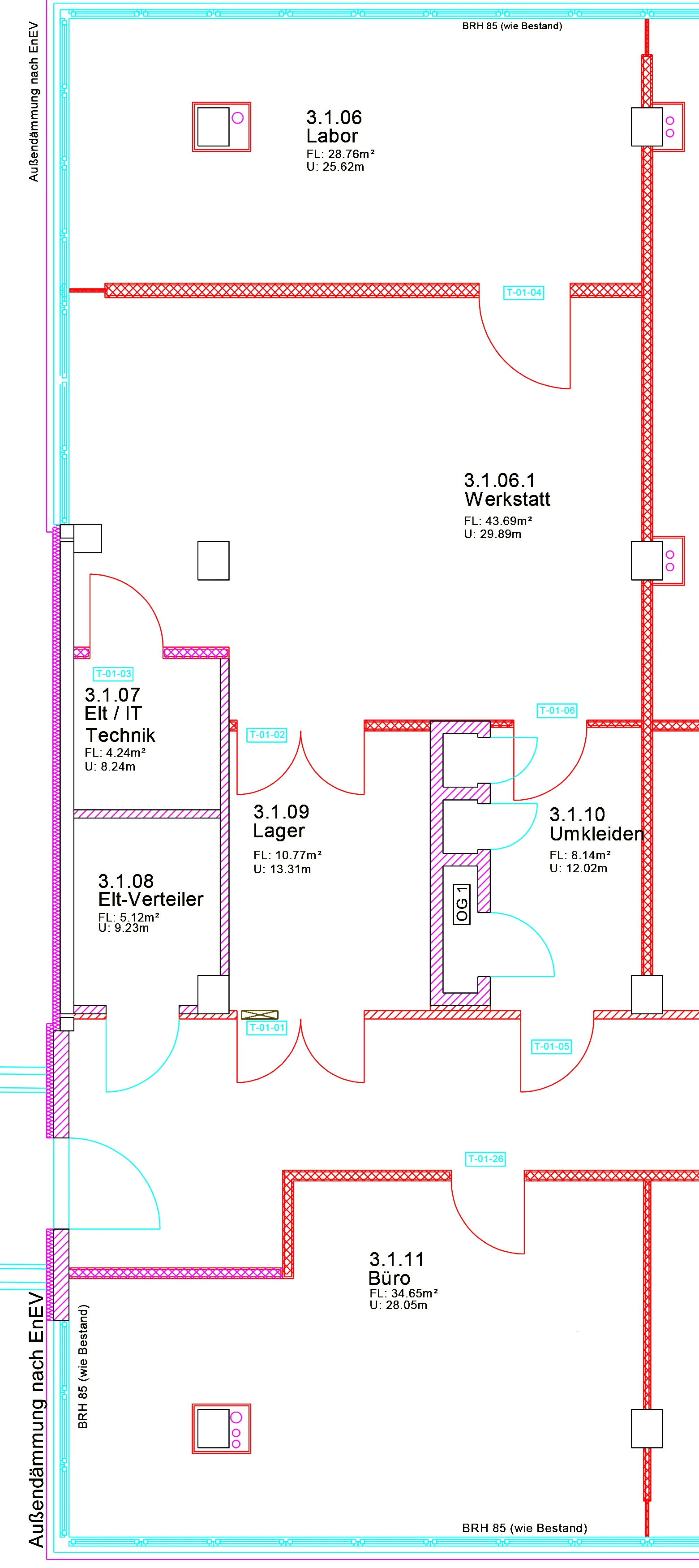
Die Laboreinheit im 1.OG kann flexibel ausgebaut werden, alle wichtigen Medien sind vorhanden. Dazugehörend ist ein gegenüberliegendes Büro.
Grunddaten
Flächendetails
Ausstattung
Zusätzliche Beschreibung zur Ausstattung:
Laborabwasser, Laborkühlwasser
Trinkwasser-/Brauchwasser-/Abwasseranschluss
Notdusche
aufbereitete Zuluft- und Abluft
Abluft technologische Abwärme/Schadstoffe
Abluft Lösemittelschränke
Abluft Sicherheitsgasschränke
Prozessabluft, 24-h-Abluft
Umluftkühler
Druckluftanschluss
ESD-Boden
Reinstgas aus Gasflaschenlager im UG
Neutralisationsanlage
Bilder



Grundriss
